Charming Finca with Great Potential outside Alhaurín el Grande– Idyllic Setting with Pool

225.000 €Alhaurin el Grande, 5 beds, 179 mts² built

Charming Finca with Great Potential outside Alhaurín el Grande– Idyllic Setting with Pool

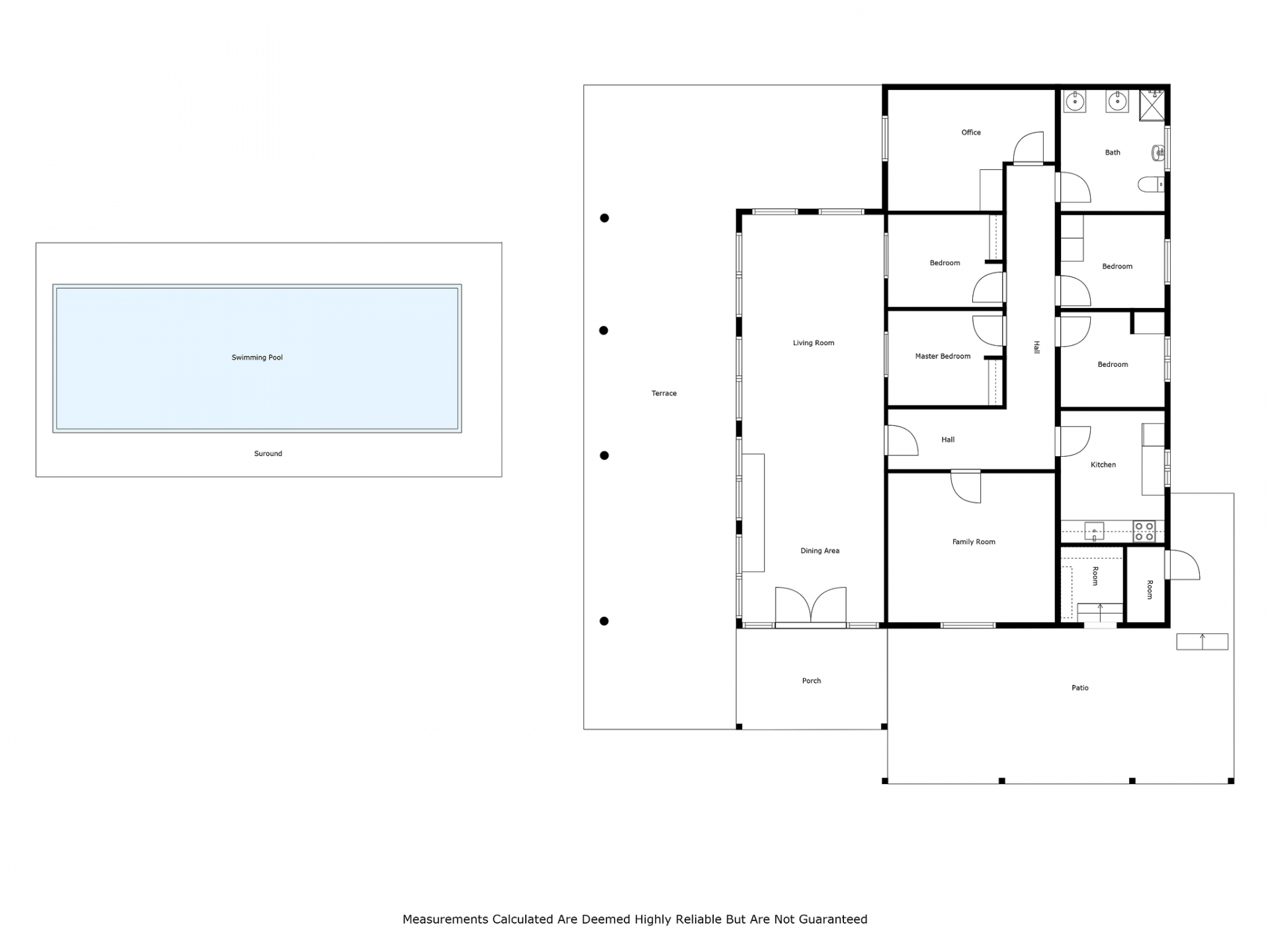
Nestled in the serene countryside of Alhaurín el Grande, this cosy finca offers a unique opportunity to own a slice of Andalusian tranquility. Set on a generous plot, the property enjoys a peaceful rural setting surrounded by rolling hills and stunning mountain views.

Read more

The finca features traditional Spanish charm, with a rustic layout. Although it is in need of renovation it’s easy to envision this becoming a beautiful country retreat or holiday home. With a bit of imagination and investment, this could be transformed into a stylish rural escape.

Highlights include:

Private swimming pool with a sun terrace – perfect for enjoying the warm Andalusian climate
Mature gardens and outdoor spaces ideal for al fresco dining and relaxation
Easy access to both Alhaurín el Grande and Alhaurín de la Torre, and within 30 minutes of Málaga airport and the coast

This finca is perfect for someone seeking a project in a quiet but connected location, with the promise of a rewarding transformation!

Reference
EPK-01669
Type
Country House
Location
Alhaurin el Grande
Beds
5
Baths
1
Build m²
179
Plot m²
4.420
Pool
Private
Garden
Private
Garbage
82 €
Ibi
120 €
Construct year
1.969

Additional Features

  • Country view
  • Mountain view
  • Mountainside
  • Renovation Needed
Get in Touch Felipe Valdés-Carter+(34) 689 95 72 83 +(47) 990 909 96 [email protected]