Fantastic west-facing two-bedroom apartment in Las Mimosas Beach Gardens, Nueva Andalucía.

695.000 €Marbella, 2 beds, 185 mts² built

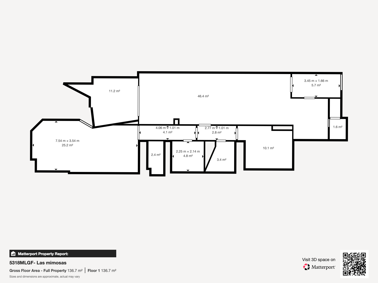
Fantastic two-bedroom ground floor apartment in the exclusive gated community of Las Mimosas Beach Gardens, in Nueva Andalucía. Located close to the beach and all local amenities, this prestigious development offers 24-hour security, two swimming pools (one indoor), a Turkish bath, and a sauna. It also features beautifully maintained gardens, a children’s playground, and much more.
The property boasts a spacious living and dining area with access to a private terrace and garden, a fully fitted kitchen, a generous utility room, a guest bedroom, and a separate guest bathroom. The master bedroom includes an en-suite bathroom and direct access to the terrace and garden. Additional features include hot and cold air conditioning, marble floors, electric shutters, double glazing, and a private parking space. This is a fantastic opportunity to acquire a home in a secure and exclusive community with excellent facilities for comfort and well-being.

Reference
5318MLGF
Type
Ground Floor Apartment
Location
Las Mimosas, Marbella
Beds
2
Baths
2
En suite baths
1
Build m²
185
Interior m²
175
Terrace m²
10
Pool
Communal
Garden
Communal
Garage
Communal
Community
490 €
Garbage
195 €
Ibi
1.840 €
Construct year
2.006
Orientation
O

Virtual Tour

Additional Features

  • 24h Service
  • Air conditioning
  • Amenities near
  • Balcony
  • Close to children playground
  • Close to golf
  • Close to schools
  • Close to sea / beach
  • Close to shops
  • Close to town
  • Double glazing
  • Electric blinds
  • Excellent condition
  • Fitted wardrobes
  • Fully fitted kitchen
  • Garden view
  • Gated community
  • Heated pool
  • Jacuzzi
  • Lift
  • Marble floors
  • Private terrace
  • Sauna
  • Security service 24h
  • Transport near
  • Turkish bath
  • Utility room
Get in Touch Felipe Valdés-Carter+(34) 689 95 72 83 +(47) 990 909 96 [email protected]

Similar Properties

Apartment for sale in Marbella - Puerto Banus
  • 2 Beds
  • 2 Baths
  • 121 m² Built
830.000 €R2998166
Ground Floor Apartment for sale in Marbella - Puerto Banus
  • 2 Beds
  • 2 Baths
  • 80 m² Built
825.000 €R5125183